Leuchen

Leuchen Walzenhausen

Der kleine Weiler Leuchen nahe Walzenhausen wird von einem pyramidalen Hügel flankiert. Das Tor zum Weiler ist ein einfaches Wohnhaus mit markanter Gaube, seit langer Zeit leerstehend und renovationsbedürftig. In einer Machbarkeitsstudie wurde ein möglicher Weg für das Haus und das geschützte angrenzende Bauernhaus aufgezeigt, mit einer Lösung für das Unterbringen von mehreren Autos, ohne dass der Ort seine Stimmigkeit verliert.

Die Struktur des Wohnhauses wird erhalten und mit neuen Elementen ergänzt. Alt und neu erschaffen ein grosszügiges Wohngefühl.

Architektur

  • Umbau
  • Sanierung
  • Machbarkeitsstudie

Hauptfassade

Hauptfassade Wohnhaus Leuchen Walzenhausen

Seitenfassade

Seitenfassade Wohnhaus Leuchen Walzenhausen

Erdgeschoss

Erdgeschoss Wohnhaus Leuchen Walzenhausen

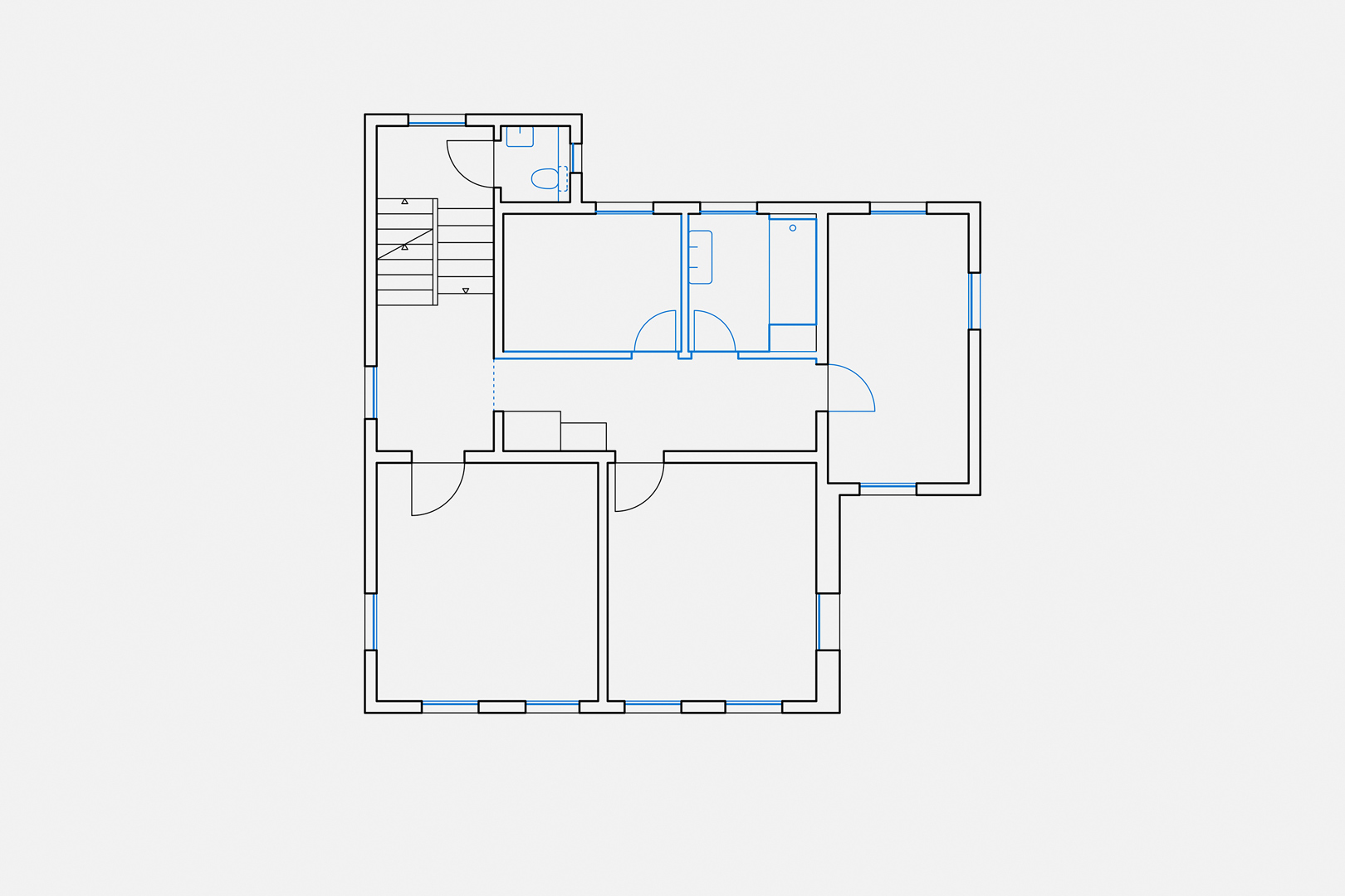
Obergeschoss

Obergeschoss Wohnhaus Leuchen Walzenhausen

Dachgeschoss

Dachgeschoss Wohnhaus Leuchen Walzenhausen