Kräzern

Kindergarten Kräzernstrasse, St. Gallen

Das 2005 in eine Wohnung umgebaute Ober-und Dachgeschoss wurde durch einen sorgfältigen Umbau mit minimalen architektonischen Eingriffen in einen Kindergarten umgestaltet.

Bewusst wurden die in Weiss- und Grautönen gehaltenen ehemaligen Wohnräumlichkeiten mit warmen Farbtönen ergänzt, damit sich die Kinder in geborgenen und anregenden Räumen bewegen können.

Im Dachgeschoss wurde die offene Trägerkonstruktion mit natürlich belassenemn Dreischichtplatten und Fichtenbretten ergänzt, so dass ein klar gegliederter Gruppenraum für das frei Spiel entsteht.

Architektur

  • Umbau im Landschaftsschutzgebiet
  • Architektonische Gesamtleistung
  • Projektierung
  • Kostenermittlung
  • Bewilligungsverfahren
  • Ausführungsplanung
  • Ausführung mit Bauleitung

Nordfassade

Nordfassade Kindergarten Kärzernstrasse St. Gallen

Ostfassade

Ostfassade Kindergarten Kärzernstrasse St. Gallen

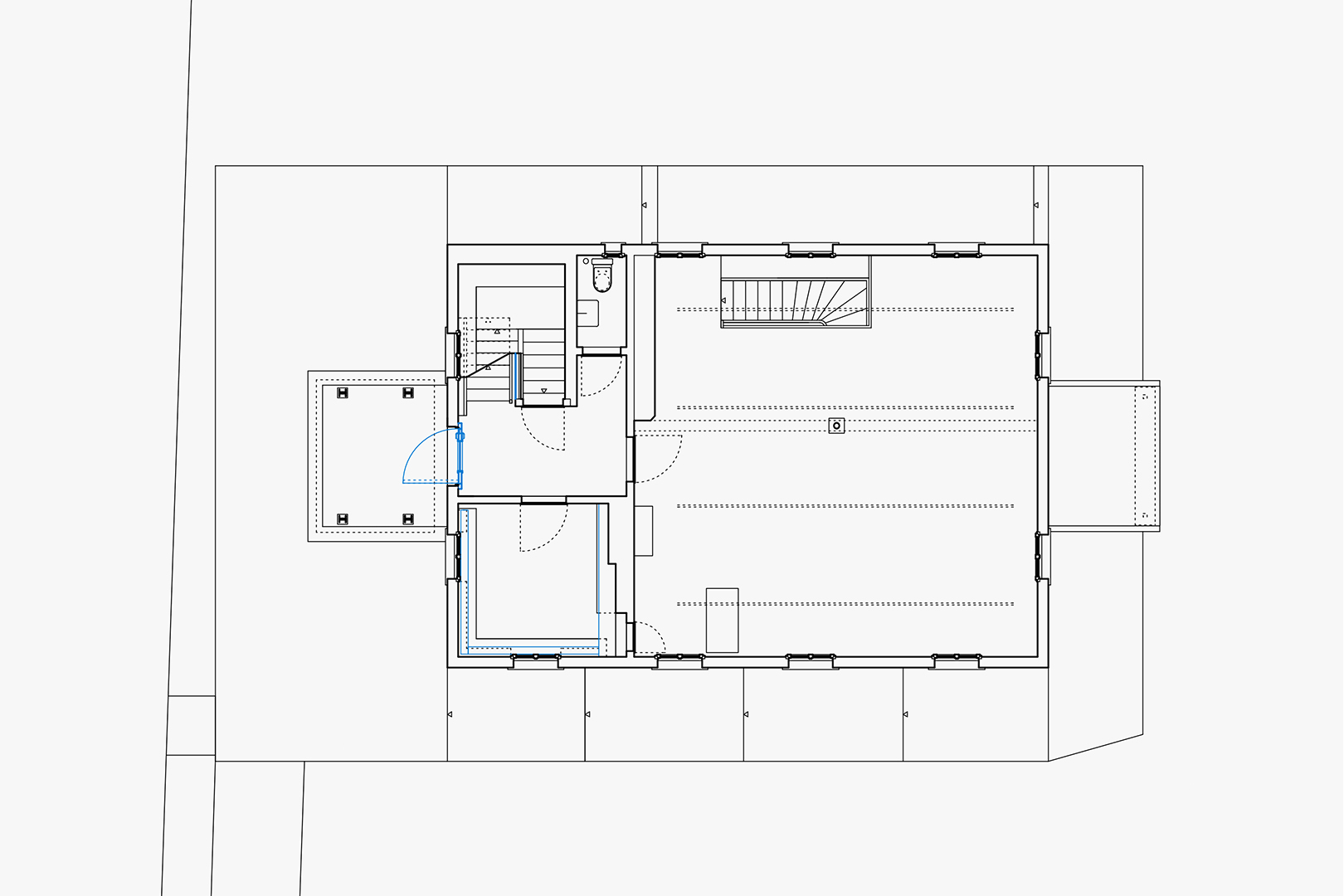
Untergeschoss

Untergeschoss Kindergarten Kärzernstrasse St. Gallen

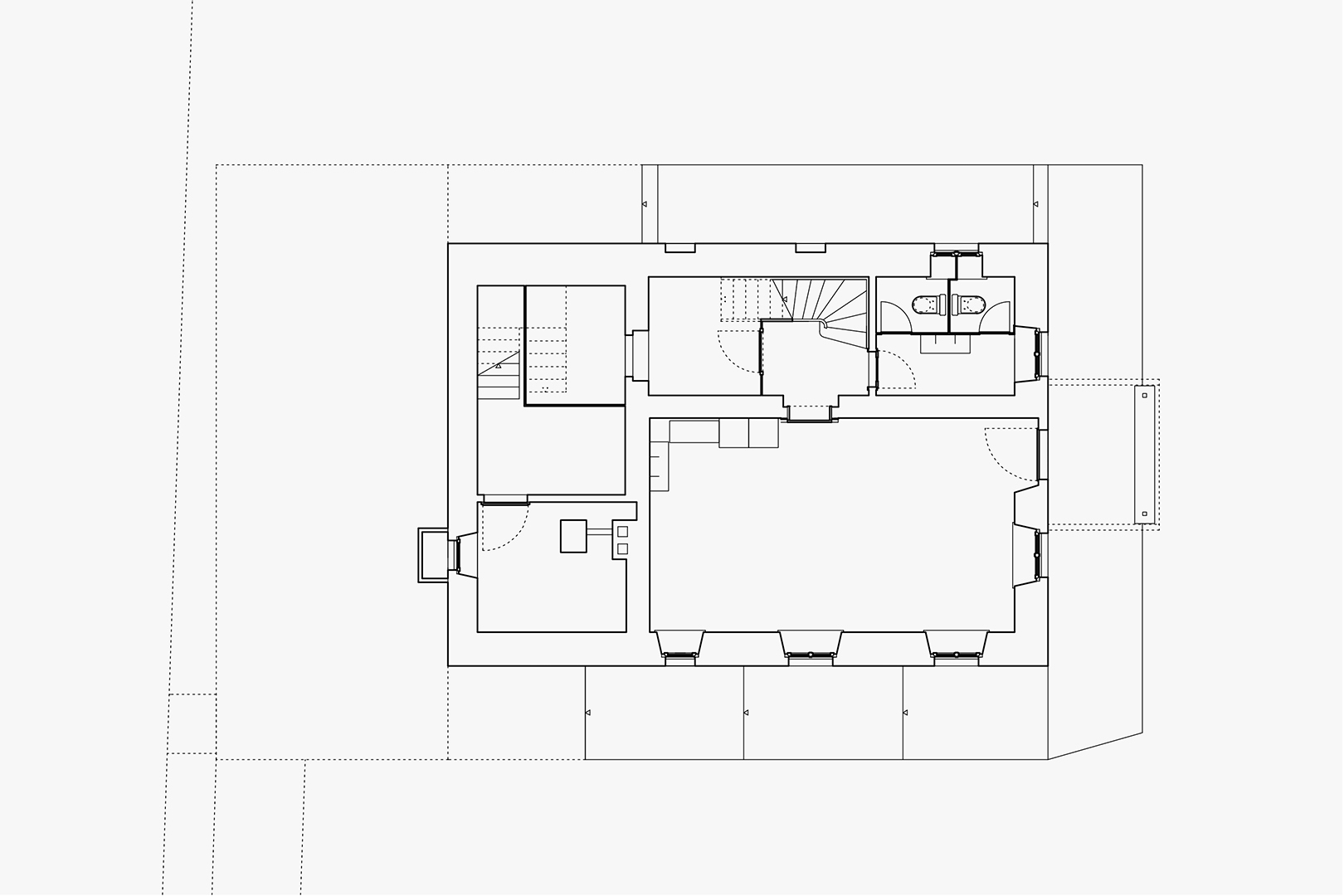
Erdgeschoss

Erdgeschoss Kindergarten Kärzernstrasse St. Gallen

Obergeschoss

Obergeschoss Kindergarten Kärzernstrasse St. Gallen

Dachgeschoss

Dachgeschoss Kindergarten Kärzernstrasse St. Gallen

Querschnitt

Querschnitt Kindergarten Kärzernstrasse St. Gallen

Längsschnitt

Längsschnitt Kindergarten Kärzernstrasse St. Gallen